Casă tip duplex I 3 camere I Curte I Panouri solare I Cristian
- 195.000€
Prezentare generală
- case-vile
- 2
- 2
Descriere
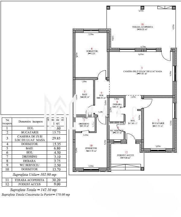
MAAC Imobiliare propune spre vânzare o parte a unei case tip duplex, construită și intabulată în 2025, amplasată într-o zonă liniștită din comuna Cristian.
Proprietatea dispune de un teren de 479 mp, o amprentă la sol de 142 mp, o suprafață utilă de 103 mp, două locuri de parcare și curte proprie, oferind un echilibru ideal între confort și funcționalitate.
Locuința este compartimentată eficient, cu un living generos prevăzut cu zonă de dining și acces pe terasă, bucătărie separată, două dormitoare (unul dintre ele dotat cu dressing), baie principală, baie de serviciu, cameră tehnică și hol de acces.
De asemenea, podul este accesibil prin scară ascunsă și poate fi folosit ca spațiu suplimentar de depozitare.
Construcția este realizată din cărămidă pe fundație de beton izolată cu polistiren extrudat, pereții exteriori fiind termoizolați cu polistiren de 15 cm, iar tavanul cu spumă poliuretanică cu celulă închisă.
Acoperișul este executat din cherestea cu folie anticondens și acoperit cu țiglă Bramac gri antracit, completat de panouri solare.
Tâmplăria PVC cu 3 foi de sticlă și peretele comun dublat contribuie la un nivel ridicat de izolare fonică și termică.
Proprietatea este racordată la gaz, apă, canalizare și electricitate, având instalațiile interioare finalizate, încălzire în pardoseală, precum și panouri solare cu baterii de stocare deja instalate.
Construită conform noilor standarde, locuința se încadrează în clasa energetică A.
Predarea este programată pentru mai 2026, în stadiul de exterior la cheie, iar interiorul poate fi livrat la alb sau la cheie, în funcție de preferințele viitorului proprietar.
Pentru mai multe detalii, contactați MAAC Imobiliare și specificați ID CP2937678
Adresa
-
Oraş: Cristian
-
Județ: Arad
Detalii
Adăugat în martie 5, 2026 la 4:08 am-
ID BDC-2937678
-
Preț 195.000€
-
Nr. Camere 2
-
Nr. Băi 2
-
Tip proprietate case-vile
-
Tip tranzacție De vânzare
Calculator ipotecar
-
Avans
-
Suma împrumutului
-
Rată lunară
-
Impozit pe proprietate
-
Asigurare de locuință
-
PMI
-
Taxe lunare ale asociației de proprietari
Programați o vizionare
Informațiile dumneavoastră
Scor Pietonal
În apropiere
Informații de contact
Vizualizați anunțurile- Mark Adorjan
- 07226224030722622403










