Casă 103 mpu I Curte proprie I Panouri Solare I Cristian
- 235.000€
Prezentare generală
- case-vile
- 2
- 2
Descriere
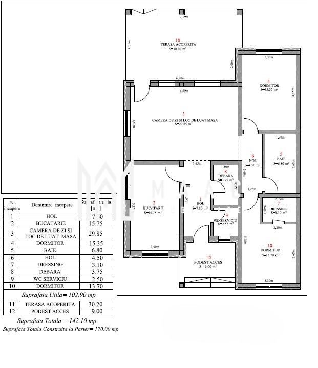
MAAC Imobiliare oferă spre vânzare o locuință modernă, recent finalizată, situată în localitatea Cristian, județul Sibiu.
Ansamblul cuprinde două unități locative construite în oglindă, despărțite printr-un perete dublu, ceea ce asigură o izolare fonică excelentă și un nivel ridicat de intimitate.
Compartimentată din:
-living generos cu zonă de dining și ieșire pe terasa de 30 mp, bucătărie separată, două dormitoare (unul prevăzut cu dressing), baie principală, baie de serviciu, debara și hol.
Proprietatea este dotată cu:
-Panouri solare și baterii de stocare, precum și generator pentru situații neprevăzute,
-Centrală pe gaz, încălzire în pardoseală, izolație exterioară cu polistiren de 15 cm, izolație planșeu pod cu spumă poliuretanică( celulă închisă) și geamuri tripan.
-Podul este accesibil prin scară interioară.
-Sunt incluse două locuri de parcare betonate.
-Curtea, cu o suprafață de 350 mp, oferă un spațiu generos ce poate fi amenajat după preferințele viitorului proprietar.
Este o alegere potrivită pentru familiile care caută o casă economică- clasa energetică A, bine organizată și cu acces rapid către Sibiu.
Termenul de predare este stabilit pentru mai 2026.
Locuința se predă „la cheie” la exterior și „la alb” la interior, cu posibilitatea de finalizare completă la cerere.
Pentru mai multe detalii și pentru a programa o vizionare, contactați MAAC Imobiliare specificând ID CP2937070.
Adresa
-
Oraş: Cristian
-
Județ: Arad
Detalii
Adăugat în martie 5, 2026 la 4:08 am-
ID BDC-2937070
-
Preț 235.000€
-
Nr. Camere 2
-
Nr. Băi 2
-
Tip proprietate case-vile
-
Tip tranzacție De vânzare
Calculator ipotecar
-
Avans
-
Suma împrumutului
-
Rată lunară
-
Impozit pe proprietate
-
Asigurare de locuință
-
PMI
-
Taxe lunare ale asociației de proprietari
Programați o vizionare
Informațiile dumneavoastră
Scor Pietonal
În apropiere
Informații de contact
Vizualizați anunțurile- Mark Adorjan
- 07226224030722622403









