Vânzare Casă Nouă – Direct Proprietar – Cumpăna
- 98.500€
Prezentare generală
- Case / Vile
- 1
- BDC-2534378
Descriere
🏡 Vânzare Casă Nouă – Direct Proprietar – Cumpăna
📍 Zonă înaltă, fără risc de inundații | Stradă asfaltată | Teren generos | Utilităti
💰 Preț: 98.500 € | Comision 0%
📞 Contact direct: 0740 664 364
🔹 Descriere generală:
Proprietate ideală pentru o familie care caută spațiu și aer curat. Situată într-o zonă ferită de pericole naturale, această casă oferă cadrul perfect pentru un trai confortabil, în mijlocul naturii, dar aproape de oraș.
🏠 Detalii tehnice & compartimentare:
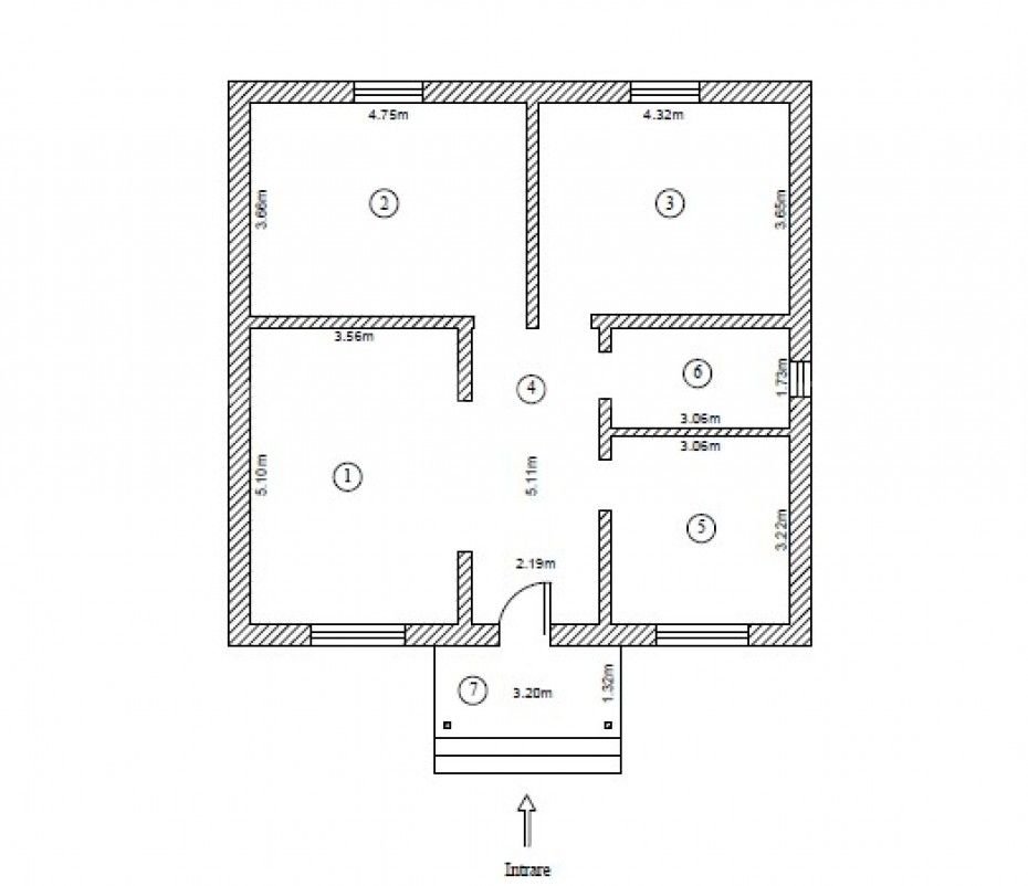
• Suprafață construită: 102 mp
• Teren: 495 mp in proprietate | Front stradal: 16 m
• Construcție solidă din BCA si beton armat, izolație exterioară, tencuială decorativă
• Acoperiș din tablă tip Lindab
• Ferestre termopan
• 3 camere spațioase, bucătărie separată, baie, hol generos, terasă
• Pod înalt (2.70 m) – ideal pentru mansardare (spațiu suplimentar locuibil)
• Locuri de parcare în curte
⚙️ Stadiu construcție & utilități:
• Casă finalizată la exterior
• Interior în stadiu “la roșu” – perfect pentru personalizare după gustul noului proprietar
• Branșamente existente: apă, curent electric, canalizare
• Gaze naturale la poartă – ușor de conectat
📜 Situație juridică:
• Teren cu cadastru actualizat
• Casă intabulată
• Toate actele pregătite pentru vânzare
🎯 Avantaje cheie:
✅ Acces facil, stradă asfaltată
✅ Toate utilitățile
✅ Ideală pentru mansardare – extindere facilă
✅ Proiect optimizat pentru trai modern
📞 Programează o vizionare: 0740 664 364
✨ Casa cu potențial real de personalizare!
#CasaCumpana #VanzareCasa #ImobiliareConstanta #InvestitieImobiliara #0Comision #CasaNoua #ProprietarDirect #CasaDeVanzare #Cumpana
Adresa
-
Oraş: Cumpana
-
Ţară: România
Detalii
Adăugat în aprilie 7, 2026 la 12:44 pm-
ID BDC-2534378
-
Preț 98.500€
-
Camere 3
-
Băi 1
-
Tip proprietate Case / Vile
-
Tip tranzacție De vânzare
Calculator ipotecar
-
Avans
-
Suma împrumutului
-
Rată lunară
-
Impozit pe proprietate
-
Asigurare de locuință
-
PMI
-
Taxe lunare ale asociației de proprietari
Programați o vizionare
Informațiile dumneavoastră
Scor Pietonal
În apropiere
Informații de contact
Vizualizați anunțurileAnunțuri Similare
- Agent Imobiliar 10575


