Teren investitie Ocna Sibiului | Panorama | Turism | 4270 mp
- 277.420€
- 277.420€
Prezentare generală
- Terenuri
- 4268
Descriere
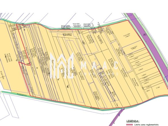
MAAC Imobiliare vă propune spre vânzare un teren pretabil pentru investiție în Ocna Sibiului, cu o suprafață de 4.268 mp, ideal pentru dezvoltarea unor proiecte în domeniul turistic și al alimentației publice. Proprietatea reprezintă o oportunitate atractivă într-o zonă cu potențial de creștere, cunoscută pentru interesul constant în sectorul ospitalității.
Terenul are o suprafață totală de 4.268 mp, nu este grevat de sarcini sau servituți și nu se află în zonă de protecție, aspecte care facilitează procesul de dezvoltare și autorizare. Regimul tehnic permite realizarea de construcții care deservesc activități de cazare și alimentație publică, oferind astfel multiple posibilități de valorificare investițională.
Caracteristici principale:
-Suprafață teren: 4.268 mp
-Teren pretabil pentru investiție
-Fără sarcini și servituți
-Nu se află în zonă de protecție
-Regim tehnic ce permite construcții pentru cazare și alimentație publică
Certificatul de urbanism poate fi transmis clienților interesați, la cerere, pentru analiză detaliată.
Pentru mai multe informații, vă rugăm să precizați telefonic că ați sunat pentru anunțul cu ID CP1349908.
Detalii
Adăugat în aprilie 19, 2026 la 10:14 pm-
ID BDC-1349908
-
Preț 277.420€
-
Suprafață teren 4268
-
Tip proprietate Terenuri
-
Tip tranzacție De vânzare
Adresa
-
Oraş: Ocna Sibiului
-
Județ: Sibiu
-
Ţară: România
Calculator ipotecar
-
Avans
-
Suma împrumutului
-
Rată lunară
-
Impozit pe proprietate
-
Asigurare de locuință
-
PMI
-
Taxe lunare ale asociației de proprietari
Programați o vizionare
Scor Pietonal
Informații de contact
Vizualizați anunțurile- Adrian S H Vasiu
- 0722622403WhatsApp

