Teren Intravilan | 20.000 MP | Sibiu | Investitie
- 2.200.000€
Prezentare generală
- terenuri
Descriere
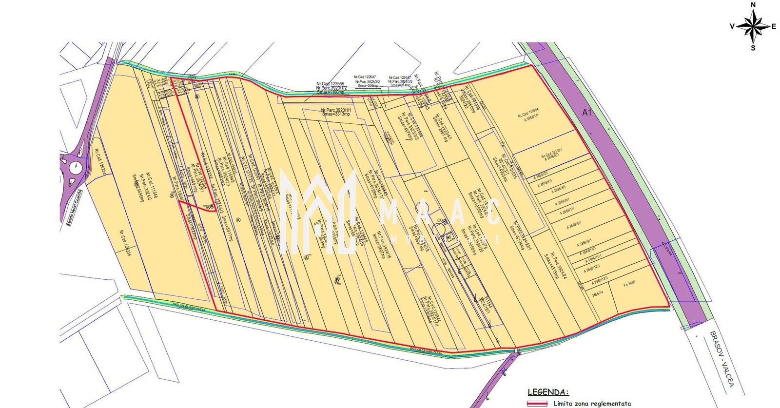
MAAC Imobiliare vă propune spre vânzare un teren intravilan cu destinație industrială, cu suprafața de 20.000 mp, amplasat în proximitatea centurii ocolitoare a Sibiului, o zonă cu acces rapid către principalele rute de transport și potrivită pentru dezvoltări logistice sau industriale.
Terenul beneficiază de o poziționare avantajoasă pentru activități industriale, depozitare sau producție, oferind posibilitatea dezvoltării unor proiecte precum hale industriale, spații de depozitare, clădiri de birouri sau anexe aferente activității desfășurate.
Caracteristicile urbanistice ale terenului permit valorificarea eficientă a suprafeței disponibile, fiind potrivit pentru investiții în dezvoltări industriale sau logistice în apropierea municipiului Sibiu.
-suprafață teren: 20.000 mp
-front stradal: 75 ml
-POT: 70%
-CUT: 2,4
Utilitățile sunt poziționate în zonă, vis-a-vis de teren fiind disponibile apă, gaz și curent electric, ceea ce facilitează racordarea viitoarelor construcții.
Prețul de vânzare al terenului este de 110 euro/mp, iar proprietatea include întreaga documentație existentă în acest moment referitoare la posibilitățile de construire pe acest teren.
Locația poate fi vizionată cu programare telefonică în prealabil.
Pentru mai multe detalii, vă rugăm să menționați telefonic că ați văzut anunțul cu CP1663318.
Adresa
-
Oraş: Sibiu
Detalii
Updated on martie 5, 2026 at 6:25 am-
ID: BDC-BDC-1663318
-
Preț 2.200.000€
-
Tip proprietate terenuri
-
Categorie For Sale
Calculator ipotecar
-
Avans
-
Suma împrumutului
-
Rată lunară
-
Impozit pe proprietate
-
Asigurare de locuință
-
PMI
-
Taxe lunare ale asociației de proprietari
Programați o vizionare
Informațiile dumneavoastră
În apropiere
Informații de contact
Vizualizați anunțurile- Marius Stanciu
- 07226224030722622403


