Cumpana Spațiu și curte generoasă! Casa familiei tale!
- 100.000€
Prezentare generală
- case-vile
- 3
- 2
Descriere
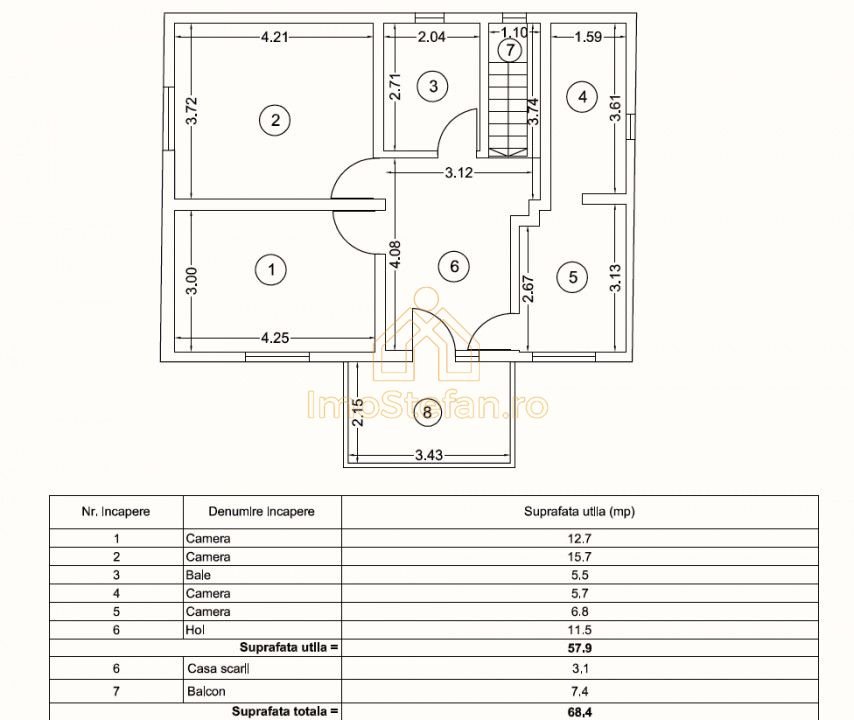
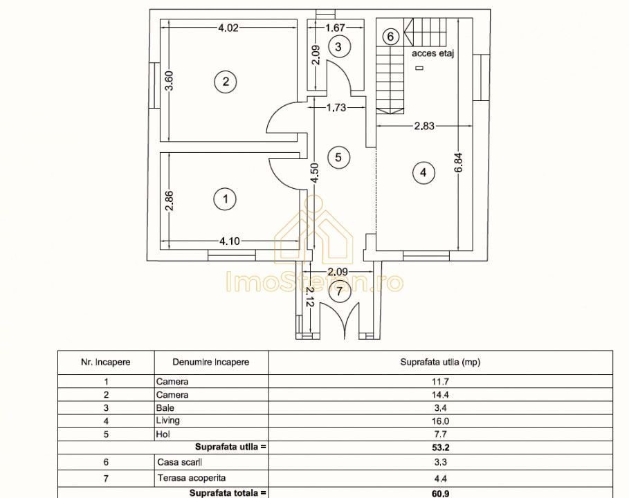
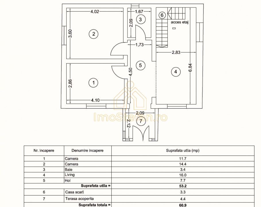
Această casă din Cumpăna reprezintă soluția ideală pentru o familie în căutare de spațiu și confort. Cu o suprafață utilă de 111,10 mp, locuința dispune la parter de un dormitor, o bucătărie generoasă, un living luminos și o baie, iar la etaj veți găsi două dormitoare, un birou, un dressing și o baie, oferind astfel flexibilitate și funcționalitate pentru fiecare membru al familiei.
Curtea, cu o suprafață de 450 mp (teren în concesiune), este perfectă pentru activități în aer liber, grădinărit sau pur și simplu pentru a te bucura de un spațiu privat și relaxant.
Casa are o structură mixtă (70% BCA, 30% Chirpic) și acoperiș Lindab, fiind clasată în clasa energetică A. Utilitățile sunt complete, cu excepția gazelor naturale și a canalizării, care sunt disponibile pe stradă, dar încă neconectate la proprietate. Zona este liniștită și oferă acces rapid la punctele de interes.
Oportunitate de preț! Achiziția se face exclusiv în regim de plată cash (din cauza structurii mixte, nu este eligibilă pentru credit ipotecar).
Nu rata această șansă! Contactează-mă acum!
Adresa
-
Oraş: Cumpana
Detalii
Adăugat în martie 5, 2026 la 2:22 pm-
ID BDC-2689347
-
Preț 100.000€
-
Nr. Camere 3
-
Nr. Băi 2
-
Tip proprietate case-vile
-
Tip tranzacție De vânzare
Calculator ipotecar
-
Avans
-
Suma împrumutului
-
Rată lunară
-
Impozit pe proprietate
-
Asigurare de locuință
-
PMI
-
Taxe lunare ale asociației de proprietari
Programați o vizionare
Informațiile dumneavoastră
Scor Pietonal
În apropiere
Informații de contact
Vizualizați anunțurile- Ștefan Dorin Toloș
- 07704388880770438888












