Casa premium 5 camere 120 mp utili curte 337 mp în Cisnadie
- 1.000€
- 1.000€
Prezentare generală
- Case / Vile
- 5
- 3
- 427
- 2025
Descriere
Agenția imobiliară Azura Estate vă propune spre închiriere o casă individuală premium, construcție nouă (2025), cu o suprafață utilă de 120 mp, amplasată pe un teren de 427 mp, situată în Cisnădie, într-o zonă liniștită, aproape de centru, școli, grădinițe și principalele puncte de interes.
Localitatea este apreciată pentru atmosfera relaxată și accesul rapid către Sibiu. Proprietatea oferă confort, intimitate și o curte generoasă de 337 mp, fiind ideală pentru locuit. În apropiere se regăsesc toate facilitățile necesare, într-un mediu sigur și prietenos.
Compartimentare:
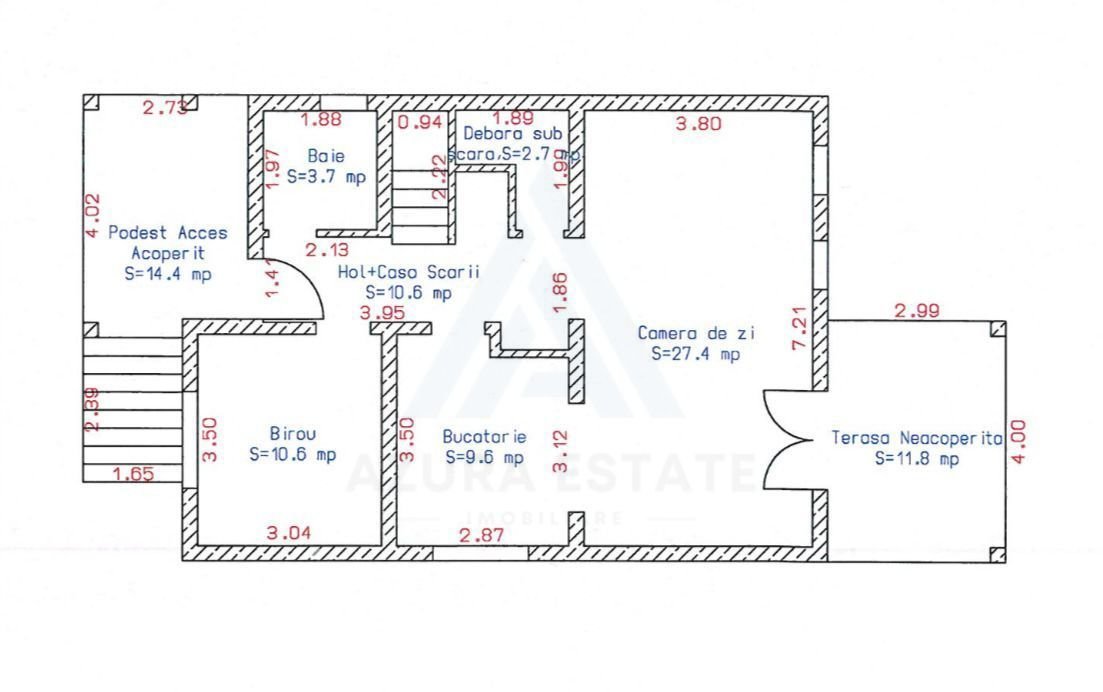
Parter (64.6 mp)
Podest acces acoperit: 14.4 mp
Living spațios cu zonă de dining: 27.4 mp + ieșire pe terasă 11.8 mp
Bucătărie open-space: 9.6 mp (cu posibilitate de închidere)
Dormitor/Birou: 10.6 mp
Baie: 3.7 mp
Debara sub scară: 2.7 mp
Hol de acces + casa scării: 10.6 mp
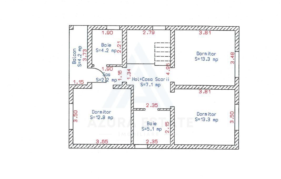
Total etaj cu balcon: 62.2 mp
Dormitor matrimonial cu dressing: 13.3 mp
2 dormitoare: 13.3 mp și 12.8 mp
2 băi: 4.2 mp și 5.1 mp
Hol + casa scării: 7.1 mp
Balcon: 4.2 mp
Sas (hol de trecere): 2.2 mp
Alte beneficii:
Casă complet mobilată și utilată, exact ca în fotografii
Centrală termică pe gaz
Toate utilitățile racordate
Izolație exterioară cu polistiren de 10 cm
Pod izolat
Curte în curs de amenajare
📞 Pentru mai multe detalii și programarea unei vizionări, nu ezitați să ne contactați!
Această locuință este ideală pentru cei care își doresc confort, spațiu și liniște.
Detalii
Adăugat în mai 14, 2026 la 5:37 am- ID BDC-3005704
- Preț 1.000€
- Suprafață proprietate 120 mp
- Suprafață teren 427
- Camere 5
- Băi 3
- Anul construcției 2025
- Tip proprietate Case / Vile
- Tip tranzacție De închiriat
Adresa
- Oraş: Cisnadie
- Județ: Sibiu
- Ţară: România
Scor Pietonal
Programați o vizionare
Informații de contact
Vizualizați anunțurile- Stefania Bunescu
- 0753469794WhatsApp











