Casa moderna 3 camere P+1 curte privata libera 170 mp in Arhitectilor
- 172.000€
Prezentare generală
- Case / Vile
- 2
- BDC-2879697
Descriere
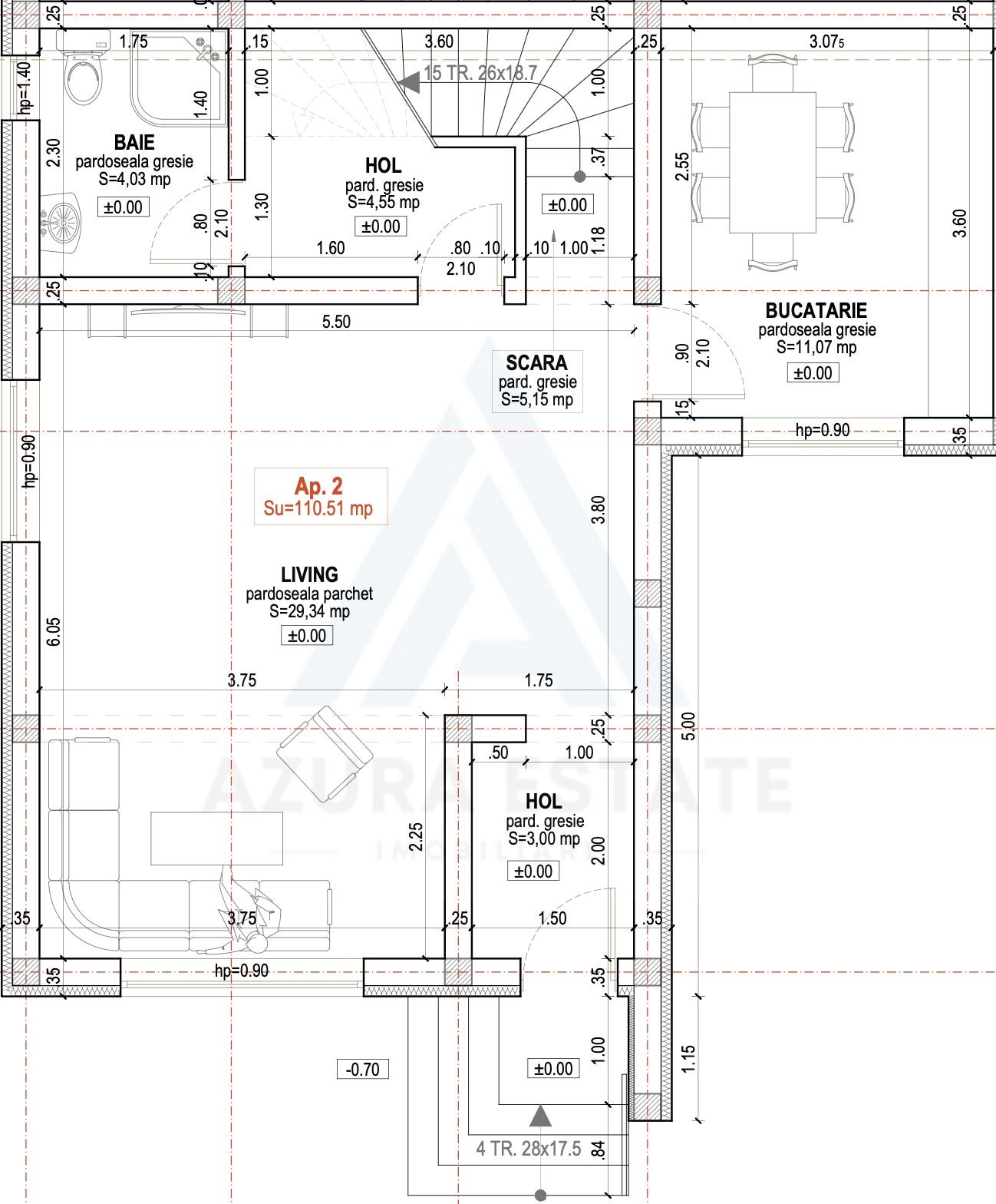
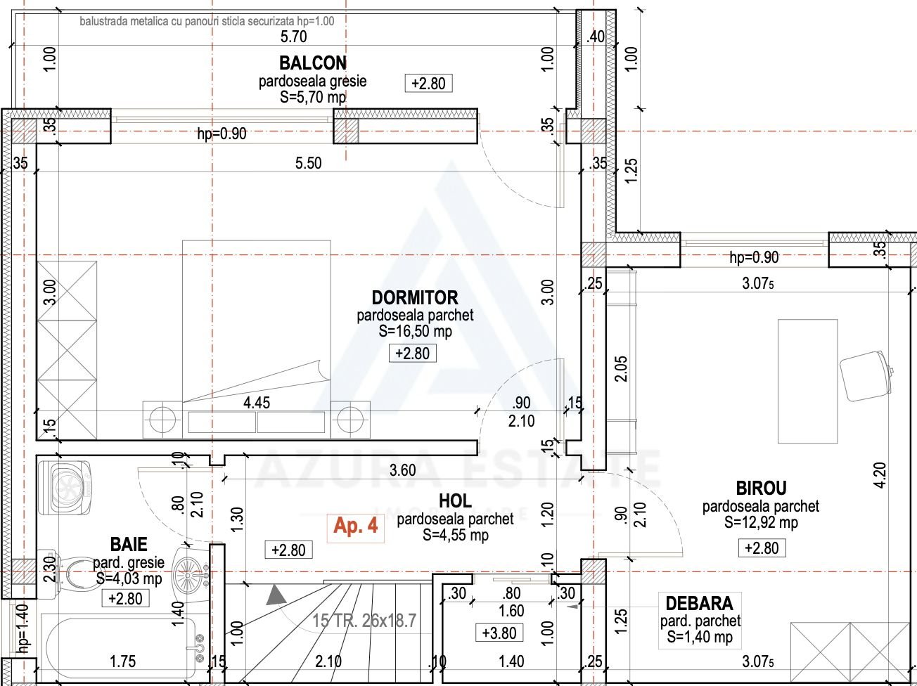
Agentia imobiliara va propune spre vanzare o casa premium, tip duplex, constructie noua, cu o suprafata utila de 110 mp, compusa din living cu bucatarie open space, 2 dormitoare matrimoniale, 2 bai si teren 220 mp in Cartierul Arhitectilor.
Zona se remarca prin dezvoltarea sustenabila din ultimii ani, distanta de 3 minute de mers pe jos pana la liziera Padurii Dumbrava, unități de învățământ (școli, grădinițe, creșe, centre after‑school), puncte comerciale și servicii esențiale (supermarketuri, magazine de proximitate, farmacii, cabinete medicale), precum și acces rapid la zona comercială Șelimbăr și la principalele artere de circulație.
Caracteristici si compartimentare:
Living generos cu bucatarie open space cu posibilitate de inchidere
2 dormitoare matrimoniale
2 bai cu ferestre de aersire
Spatiu tehnic
Hol de acces
Locuri de parcare
Curte libera 170 mp utili
Casa se preda la stadiul de cheie exterior cu curte pavata, izolatii exterioare, garduri si porti, iar la interior stadiul de predar este la alb cu incalzire in pardoseala pe ambele niveluri, usa la intrare, ferestre tripan Salamander model 3 anotimpuri, balcoane cu sticla dublu securizata.
Pretul de vanzare al acestei case este de 172000 euro negociabil cu TVA inclus de 21%
Adresa
-
Oraş: Cisnadie
Detalii
Adăugat în martie 14, 2026 la 6:55 pm-
ID BDC-2879697
-
Preț 172.000€
-
Camere 3
-
Băi 2
-
Tip proprietate Case / Vile
-
Tip tranzacție De vânzare
Calculator ipotecar
-
Avans
-
Suma împrumutului
-
Rată lunară
-
Impozit pe proprietate
-
Asigurare de locuință
-
PMI
-
Taxe lunare ale asociației de proprietari
Programați o vizionare
Informațiile dumneavoastră
Scor Pietonal
În apropiere
Informații de contact
Vizualizați anunțurile- Adrian Sasu
- 07470992400747099240













