Casa individuala 4 camere 146 mp utili P+1 si teren 475 mp in Selimbar
- 244.500€
- 244.500€
Prezentare generală
- Case / Vile
- 4
- 2
- 475
- 2025
Descriere
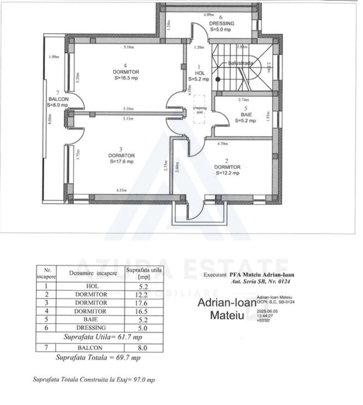
Agentia imobiliara Azura Estate va propune spre vanzare o casa individuala constructie premium, cu o suprafata utila de 146 mp, formata din living cu bucatarie open space, 3 dormitoare, 2 bai, terasa, 3 balcoane, pod si teren 475 mp utili, edificata din caramida si izolata exterior in anul 2025 in Selimbar.
Zona este recunoscuta pentru dezvoltarea sustenabila din ultimii ani, accesul facil catre punctele de interes comun ale orasului, comunitatea linistita formata din case cat si proximitatea fata de Mall, centre comerciale, A1, scoli si gradinite.
Caracteristici si compartimentare:
Parter
Living generos cu bucătărie open-space (există posibilitatea de compartimentare)
Baie
Cămară
Hol de intrare
Terasă acoperită de 16 mp
Magazină exterioară
Etaj
3 dormitoare, fiecare cu balcon propriu
Baie spațioasă
Dressing separat
Hol cu spatiu pentru depozitare
Pod open-space ideal pentru depozitare, cu acces facil și instalație electrică dedicată
🛠️ Stadiu și finisaje
Interior – LA ALB avansat cu 2 mâini de lavabilă
Centrală termică instalată
Încălzire în pardoseală pe parter și etaj
Instalații electrice și sanitare finalizate
Tâmplărie PVC Salamander 5 camere, pachet de sticlă Solar 40 mm, 3 foi de sticlă, feronerie Roto
Exterior – LA CHEIE
Gard complet realizat
Poartă pietonală și auto pregătite pentru videointerfon
Poartă auto cu instalație electrică pentru deschidere automată
2 locuri de parcare amenajate
Zone pavate finalizate
Suprafață construită desfășurată: 192 mp
Suprafață utilă: 146 mp
Regim de înălțime: Parter + Etaj + Pod
Teren total: 475 mp
Branșamente: apă, gaz, curent trifazic, fibră optică.
Pretul de vanzare este de 244500 euro negociabil!
Detalii
Adăugat în aprilie 30, 2026 la 3:24 am- ID BDC-2952343
- Preț 244.500€
- Suprafață proprietate 146 mp
- Suprafață teren 475
- Camere 4
- Băi 2
- Anul construcției 2025
- Tip proprietate Case / Vile
- Tip tranzacție De vânzare
Adresa
- Oraş: Selimbar
- Județ: Sibiu
- Ţară: România
Calculator ipotecar
- Avans
- Suma împrumutului
- Rată lunară
- Impozit pe proprietate
- Asigurare de locuință
- Taxe lunare ale asociației de proprietari
Scor Pietonal
Programați o vizionare
Informații de contact
Vizualizați anunțurile- Adrian Sasu
- 0747099240WhatsApp















