Apartament cu 3 Camere Spațios cu Vedere Frontală la Lacul Siutghiol și Mamaia
- 120.000€
- 120.000€
Prezentare generală
- Apartamente
- 3
- 2
- 2024
Descriere
🌅 DIRECT DEZVOLTATOR: 3 CAMERE | VEDERE FRONTALĂ LA LAC | PARCARE INCLUSĂ | 0% COMISION
🌟 Avans minim • credit bancar • mutare imediată! 🌟
📜 Cadastru și intabulare pregătite pentru vânzare
📍 Ovidiu, Constanța – zonă liniștită, cu vedere spectaculoasă la Lacul Siutghiol
🛋️ Detalii esențiale:
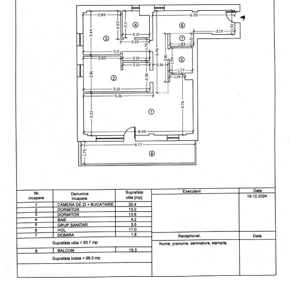
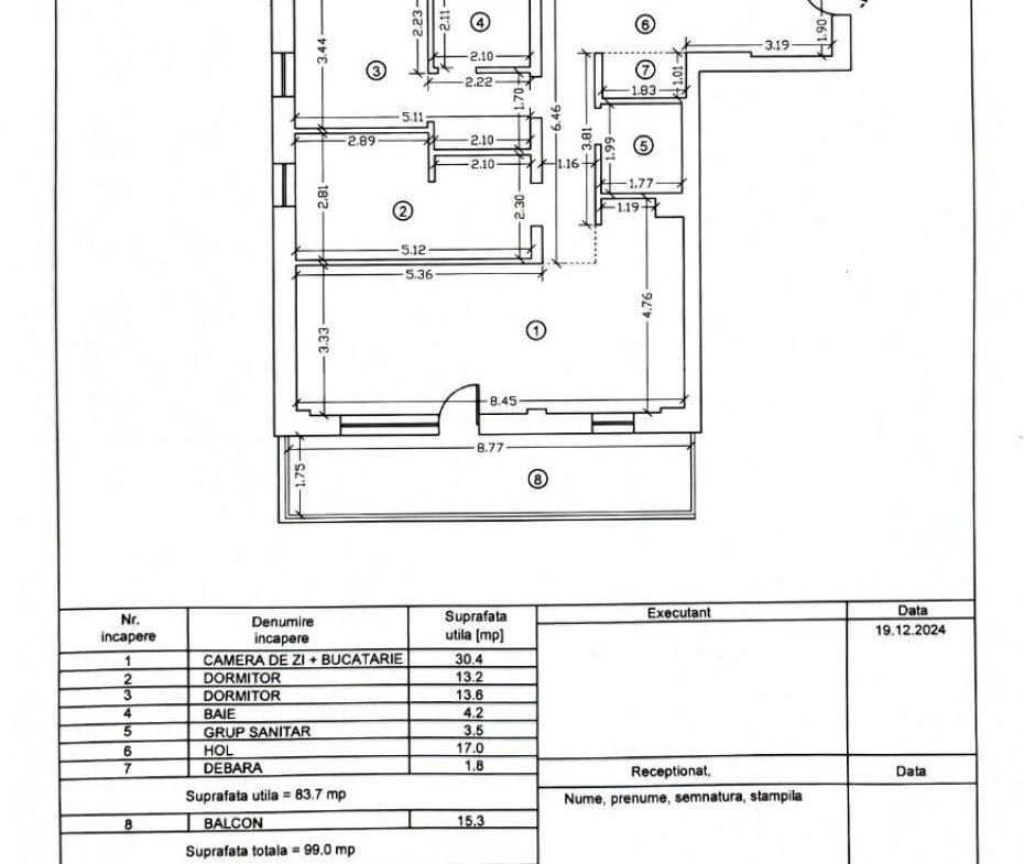
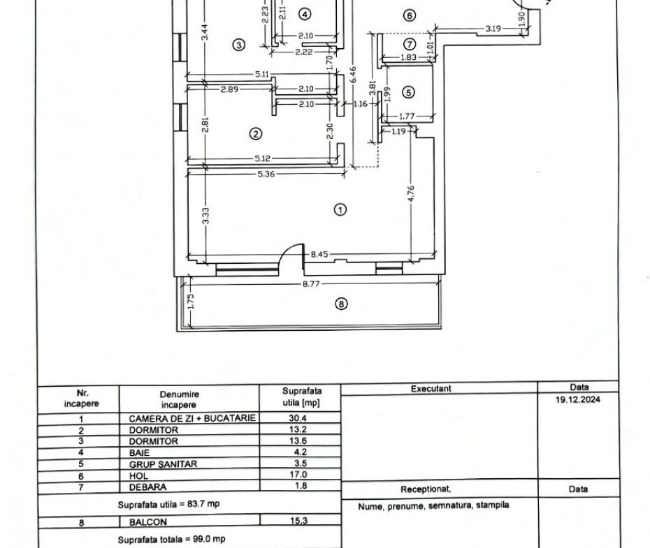
📐 Suprafață: 99 mp
🏢 Etaj: 2, 3, 4 sau 5 din 8
🔹 Dotări & beneficii premium:
🛏️ 3 camere spațioase – ideale pentru familie
🌞 Balcon pe toată lungimea apartamentului – răsărit & apus superbe
🚿 2 băi – cadă + duș
🚇 2 lifturi moderne
🔒 Videointerfon
🪟 Ferestre tripan Barrier – izolație fonică și termică excelentă
❄️ Aer condiționat + centrală pe gaze a imobilului
🅿️ Loc de parcare inclus în preț
💰 Preț (Direct Dezvoltator): 145.200 € (TVA 21% inclus)
🏷 Comision 0% pentru cumpărător
📞 Detalii & vizionări: 0740 664 364
#ApartamentOvidiu #VedereLaLac #Apartament2Camere #DirectDezvoltator #0Comision #ImobiliareConstanta #LocDeParcareInclus #MutareImediata #InvestitieImobiliara #ApartamentNou
Detalii
Adăugat în mai 25, 2026 la 1:51 pm- ID BDC-2489722
- Preț 120.000€
- Suprafață proprietate 99 mp
- Camere 3
- Băi 2
- Anul construcției 2024
- Tip proprietate Apartamente
- Tip tranzacție De vânzare
Adresa
- Oraş: Ovidiu
- Județ: Constanța
- Ţară: România
Calculator ipotecar
- Avans
- Suma împrumutului
- Rată lunară
- Impozit pe proprietate
- Asigurare de locuință
Scor Pietonal
Programați o vizionare
Informații de contact
Vizualizați anunțurile- Vali Boldas
- 0740664364WhatsApp










